Ескізний проєкт індивідуального житлового будинку
Даний об’єкт реалізований як Ескізний проєкт (ЕП), що є базовим документом для отримання дозвільної документації у приватному секторі. Архітектурні рішення розроблені з урахуванням посадки будівлі на ділянку та дотриманням усіх протипожежних і побутових розривів.
Будинок спроєктований з урахуванням сучасних вимог до ергономіки та зонування:
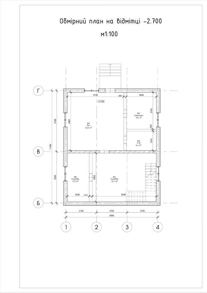
- Завдяки влаштуванню повноцінного цокольного поверху, вдалося винести всі господарські зони за межі житлового простору. Тут розміщені велика котельня, просторі комори та допоміжні приміщення.
- Будинок має виразний силует із перемінною висотністю. Планування передбачає велику площу скління, що забезпечує природну інсоляцію та візуальну легкість споруди.
- Розміри в осях 13,2 х 9,29 м дозволяють компактно розмістити будівлю навіть на невеликій ділянці, зберігаючи при цьому внутрішній простір площею 285,1 м².






Даний об’єкт реалізований як Ескізний проєкт, що є ключовим етапом для отримання Будівельного паспорта. Це стратегічно важливий крок, який дозволяє власнику пройти шлях до повноцінного володіння нерухомістю за чітким алгоритмом:
- Розробка Ескізного проєкту — архітектурна основа, де визначено фасади та внутрішнє планування.
- Отримання Будівельного паспорта — офіційне підтвердження відповідності намірів забудови містобудівним нормам.
- Подання повідомлення про початок будівельних робіт — легальний старт будівництва.
- Виготовлення Техпаспорта — фіксація фактичних характеристик збудованого об’єкта.
- Реєстрація Декларації — офіційне введення будинку в експлуатацію.
- Присвоєння адреси в ЄДЕССБ — внесення об’єкта до державної електронної системи.
- Державна реєстрація права власності (РРП) — отримання витягу з реєстру нерухомого майна.
Такий системний підхід гарантує, що побудований дім буде не лише естетичним та зручним, а й повністю законним активом із правильно оформленими документами.